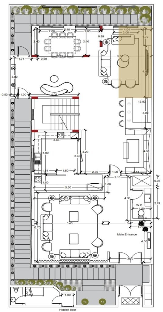
Obhur Villa
Jeddah
Land 450 Sqm Villa
Budget 1 Million

Full Scope of Work

Design & Supervision Turnkey Renovation & Landscape Supply Materials Fit out & Furniture Project Management